3

Nhà Phố Quận 8

Chia sẻ dự án :

Tên Dự Án

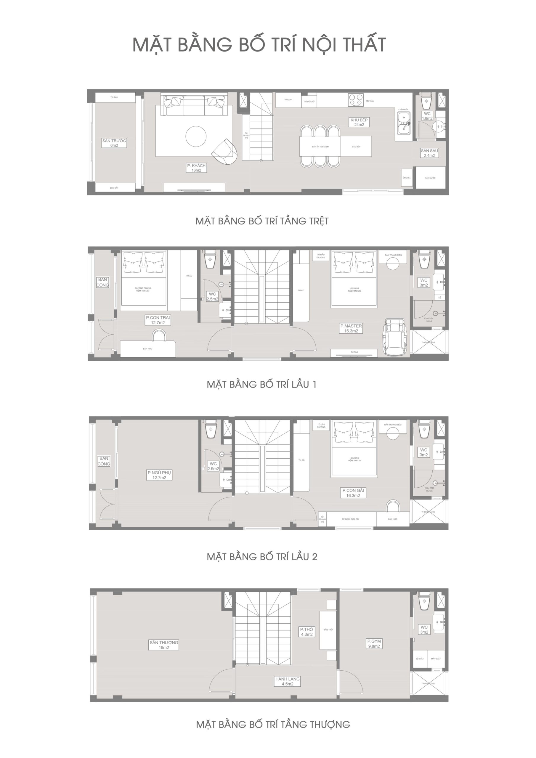
Nhà Phố Quận 8

Diện Tích Dự Án

45.1m2 (4.1X11)

Hạng Mục

Thiết kế kiến trúc

Dự Án Mới Nhất

Hình ảnh dự án

Dự Án Mới Nhất

Bạn Cần Tư Vấn

Hãy cho chúng tôi biết bạn đang quan tâm đến hạng mục nào